Pick up point
担当者からのおすすめポイント
- カラーセレクト
- 間取変更可能
- セミオーダー住宅
- まもりすまい保険
- 地盤保証
- アフターサービス
- おすすめ物件
- 新着物件
Property outline
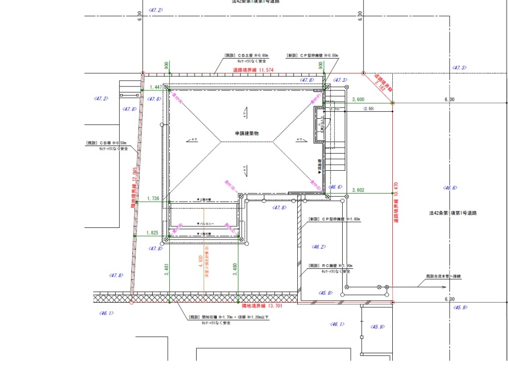
横須賀市富士見町2丁目
新築一戸建て / 物件概要
| 所在地 | 横須賀市富士見町2丁目 | ||
|---|---|---|---|
| 交通 | 京急本線「県立大学」駅 徒歩14分 | ||
| 価格 | 3,990万円(税込) | ||
| 物件名称 | サンステージ富士見町二丁目 | ||
| 物件種別 | 新築一戸建て | 土地面積 | 160.03㎡ |
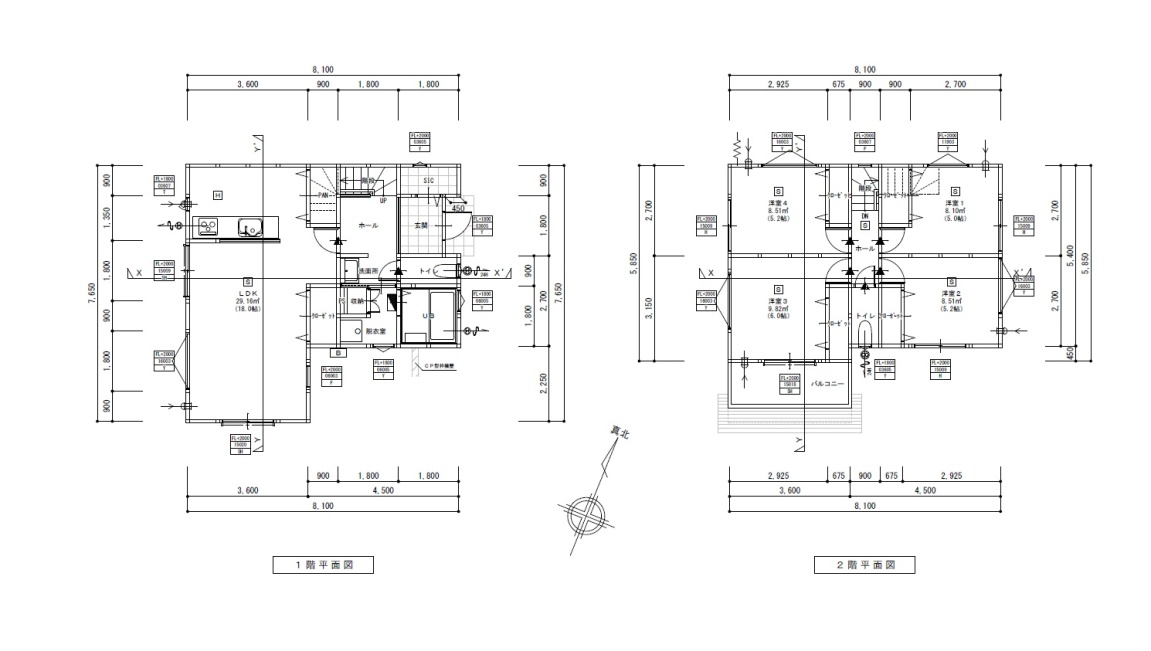
| 建物面積 | 96.39㎡ | 間取 | 4LDK |
| 建物構造 | 木造 2階建 | 完成 | 契約6ヶ月後 |
| 建築確認番号 | 第AI建築確認00-2501004号 | 現況 | 更地 |
| 駐車場 | 3台(車種による) | 引渡し時期 | 相談 |
| 取引態様 | 売主 | ||



















